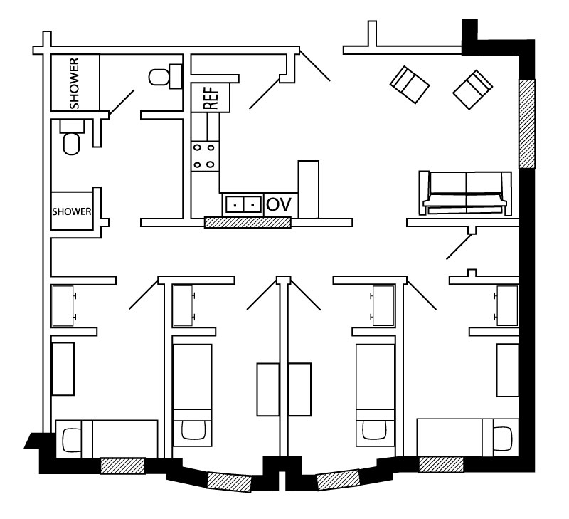
Spartan Hall is a co-ed, 75-unit, apartment-style facility. The building is three stories and each floor houses approximately 25 students.
Each residence hall suite features two to four private bedrooms furnished with a bed, chest of drawers, a desk, and a chair. The suites feature a closet, two bathrooms, a living room, and a kitchen area with stove, microwave, refrigerator, and freezer. Each room has a Roku stick and is wired for high-speed Internet access.
- XL twin bed with mattress and mattress pad--can be bunked or used separately
- Chest of drawers
- Desk and chair
- Closet area
- A Roku stick is provided in each room
- High-speed wireless Internet access
- FREE laundry facilities (located on each level)
- Membership to the Southern Prairie Family Fitness Center, located adjacent to student housing
Average Room Dimensions
- Bedrooms: 9'x12'
- Living room: 9.5'x13'
- Kitchen: 13'x10'
- Bathroom: 8.5'x7'
Spartan Hall has central air conditioning with temperature control in each suite.
Meal plan information: With your student housing contract, you will be provided with a Cafe Cash declining balance meal card. The Spartan Cafe is open Monday through Friday, 7 a.m.-7 p.m. You will have the option of adding additional funds to this card. For meal plan options, please visit Tuition & Fees.
